6 Fotos und Anhänge ansehen
Potsdam Immobilien UG - c./o. Immobilien Center
Großbeerenstraße 7, 14482 Potsdam
Heiko Schnörpel

Haus von vorne

Gäste WC

Bad rechts

Bad links

Küche vorne rechts

Küche vorne links

Großzügige 2-Zimmer-Erdgeschosswohnung mit Terrasse, Gartenanteil und Gäste-WC

Eckdaten

  • Art Erdgeschosswohnung
  • Lage 14480 Potsdam
  • Kaufpreis 340.000,00
  • Hausgeld 403,02
  • Wohnfläche ca. 74
  • Zimmer 2
  • Gartenfläche ca. 50
  • Kellerfläche ca. 10
  • Baujahr 1996
  • Etagenzahl 4
  • Etage 1
  • Heizungsart Fernwärme
  • Einbauküche ja
  • Gäste-WC ja
  • Vermietet nein
  • Bezugstermin 01.03.2026
  • Fahrzeit Hauptbahnhof 30 min
  • Fahrzeit nächste Autobahnauffahrt 5 min
  • Bodenbelag Laminat
  • Ausstattung des Bades Dusche Badewanne
  • Zustand Gepflegt
  • Immobilien-ID 7523
  • Provision 3,57 % inkl. MwSt.

Immobilie

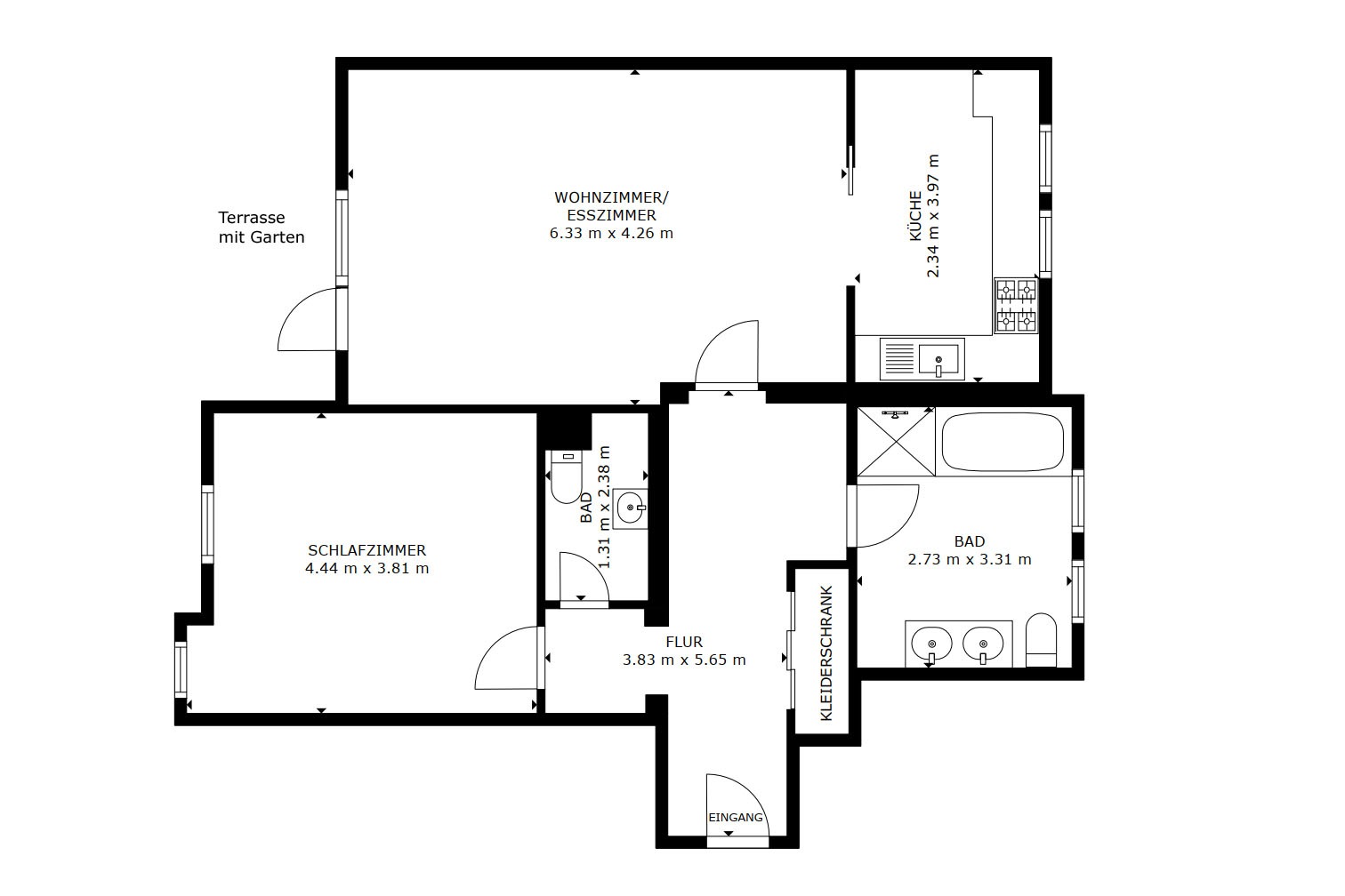
Die Wohnung befindet sich im Erdgeschoss eines gepflegten Wohnhauses im Kirchsteigfeld und bietet einen klaren und großzügigen Grundriss.

Der Wohnbereich öffnet sich direkt zur Terrasse und zum eigenen Gartenanteil – ideal für entspanntes Wohnen, Gartenliebhaber oder als privater Rückzugsort.

Die gepflegte Einbauküche bleibt in der Wohnung. Zusätzlich verfügt die Einheit über ein hell gefliestes Badezimmer sowie ein separates Gäste-WC.

Hinweise für Interessenten

Aktuell stehen der Grundriss sowie Fotos vom Gäste-WC und Badezimmer zur Verfügung.
Weitere Innenaufnahmen und die vollständige Adresse erhalten Interessenten nach einer Anfrage mit Kontaktdaten – aus Rücksicht auf die Privatsphäre.

Lage

Die Wohnung liegt im beliebten Potsdamer Stadtteil Kirchsteigfeld mit kurzen Wegen zu Einkaufsmöglichkeiten, Tram, Bus und Grünflächen. Direkt hinter dem Haus befindet sich eine Grundschule. Während der Unterrichtszeiten ist zeitweise Kinderlachen zu hören, außerhalb dieser Zeiten sowie am Wochenende ist es ruhig und angenehm entspannt.

Ausstattung

Ausstattung
• Ca. 74 m² Wohnfläche
• Erdgeschoss
• Terrasse + eigener Gartenanteil
• Einbauküche inklusive
• Bad + separates Gäste-WC
• Kellerraum & Fahrradraum
• Stellplatzanmietung in der Tiefgarage über die Hausverwaltung möglich
• Helle Wohnräume

Hinweis zur Barrierefreiheit

Die Wohnung befindet sich im Erdgeschoss und ist innerhalb des Gebäudes weitgehend barrierefrei zugänglich. Der direkte Zugang von der Wohnung zur Terrasse und zum Garten ist jedoch nicht vollständig barrierefrei, da hier eine kleine Stufe vorhanden ist.

Für Personen mit Rollstuhl oder eingeschränkter Mobilität gibt es dennoch eine praktikable Lösung:
Der Garten kann barrierefrei über den Außenweg erreicht werden, sodass der eigene Gartenanteil trotz der Stufe an der Terrassentür gut nutzbar bleibt.

Keller Rollstuhlgerecht Aufzug Seniorengerecht Vermietet Gäste-WC Terrasse vorhanden Einbauküche Rollladen vorhanden

Sonstiges

Bezugsfrei ist die Wohnung ab dem 1.März.

Der Energieausweis ist bei der Hausverwaltung beantragt und liegt zur Besichtigung vor.

* Der Käufer zahlt bei Kaufvertragsabschluss die Hälfte der Maklerprovision in einer Höhe von 3,57 %, inklusive der gesetzlichen Mehrwertsteuer.

Alle Angaben in diesem Exposé basieren auf Informationen, die der Verkäufer uns zur Verfügung gestellt hat. Eine Gewähr für deren Richtigkeit kann nicht übernommen werden.

* Dies ist der derzeitige Angebotspreis. Wir weisen darauf hin, dass der Angebotspreis fallen, oder bei erheblicher Nachfrage nach Objekten der hier angebotenen Art auch steigen kann.

Energieausweisangaben

A+
A
B
C
D
E
F
G
H
  • Enerigeausweistyp Verbrauchsausweis
  • Energiekennwert 126 KWh(m²*a)
  • Energieeffizienzklasse D
  • Heizungsart Fernwärme
  • Befeuerung / Energieträger Wärmelieferung

Grundrisse

Wie können wir Ihnen behilflich sein?

Herzlichen Dank für Ihre Anfrage.

Wir werden diese so schnell wie möglich bearbeiten.

Wie können wir Ihnen behilflich sein?
* Pflichtfeld